Pronájem unikátního historického domu na prestižní ulici Jakubská
| Město | Brno |
|---|---|
| Číslo nabídky | 733530 |
| Cena |
Nabízíme k dlouhodobému pronájmu jedenáct plně zrekonstruovaných jednotek v historickém domě v samotném srdci Brna, na prestižní adrese Jakubská 9. Využití jednotek je velmi různorodé – od krátkodobých pobytů přes nadstandardní bydlení pro zahraniční studenty až po dlouhodobé pronájmy.
U všech variant využití je možné zajistit téměř bezúdržbový provoz pomocí například selfcheckin automatů (tzv. automatická recepce), kódových zámků, kamerového systému apod. Spolupráci na zajištění stravování se nebrání ani kvalitní nájemce gastro provozu v přízemí.
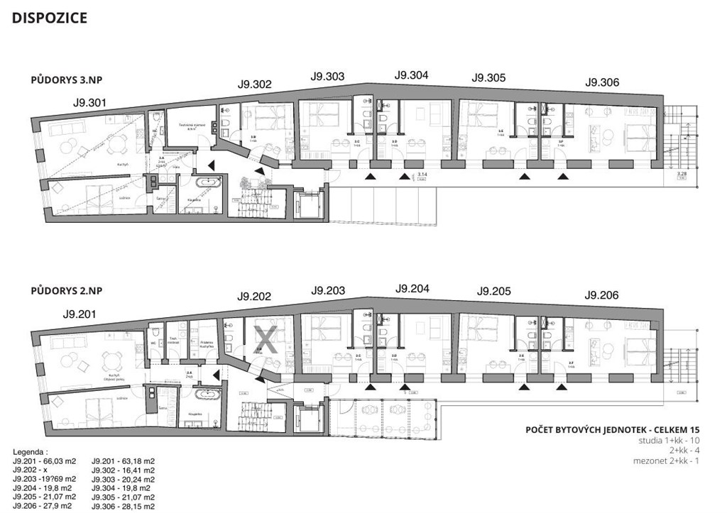
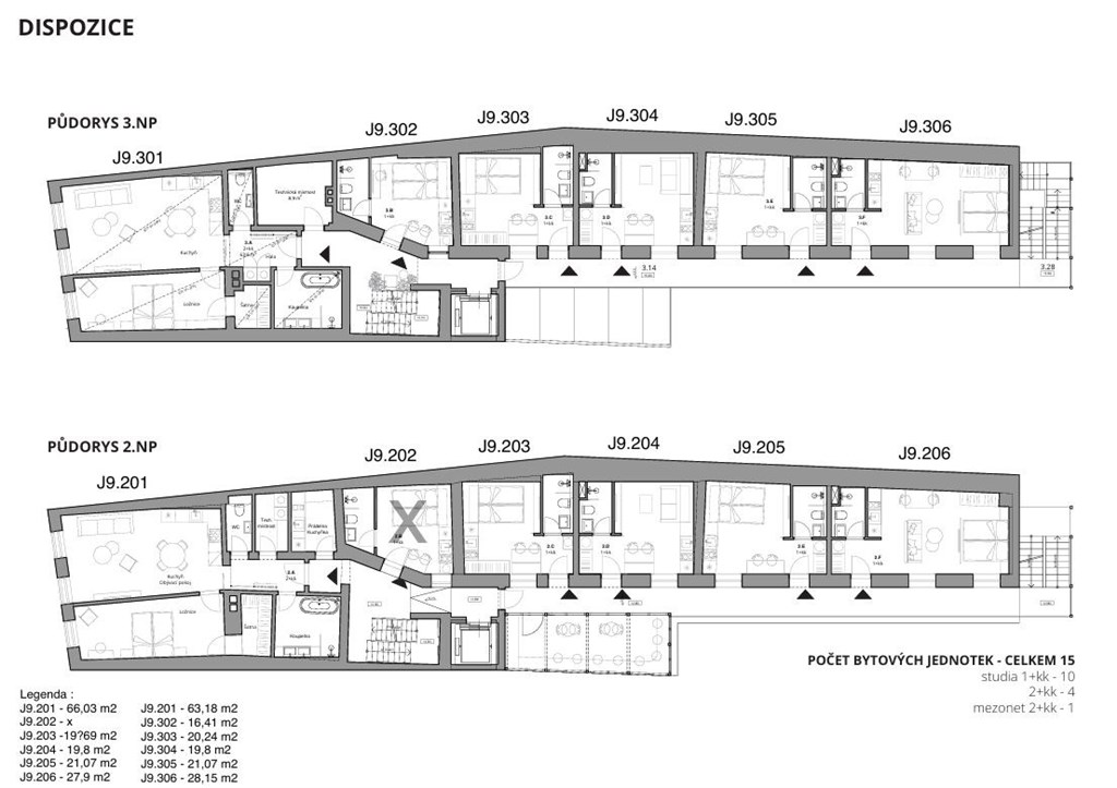
Jednotky se nacházejí ve 2. a 3. nadzemním podlaží domu. Každé patro nabízí prostornou jednotku typu 2+kk s výhledem do ulice a dále jednotky o dispozici 1+kk s různou podlahovou plochou. Každá jednotka je plně vybavena a připravena k okamžitému užívání. Součástí standardu jsou moderní spotřebiče, jako je televizor, trouba s mikrovlnnou funkcí, varná konvice, sklokeramická varná deska, myčka nádobí, lednice, pračka se sušičkou a klimatizace. Jednotky jsou navrženy s důrazem na styl, funkčnost a estetický detail – každý prostor působí útulně, moderně a ladí s jednotným, kvalitním interiérovým konceptem, který odpovídá vysokým nárokům na komfortní bydlení.
Ve vnitrobloku domu se nachází letní zahrádka s posezením a grilem, kterou je v případě možné zájmu také nabídnout k pronájmu pro obyvatele domu. V domě je k dispozici výtah. V každé jednotce je k dispozici internetové připojení.
A co dělá tyto jednotky výjimečné? Bydlení na Jakubské ulici nabízí něco, co potencionální nájemníci jinde nenajdou. Prestižní poloha v centru města znamená, že mohou užívat výhody perfektní občanské vybavenosti a zároveň pohodlí vlastního domova. Hned za dveřmi najdou restaurace, kavárny, obchody, fitness centra, lékárny a další služby. Dopravní uzel Česká, vzdálený jen dvě minuty pěšky, umožní rychlé spojení kamkoliv. Pro chvíle zábavy či kultury jsou divadla, kina, galerie i historická místa doslova za rohem. V bezprostřední blízkosti nemovitosti se nachází tři velkokapacitní parkovací domy.
Celkově se jedná o unikátní nabídku pronájmu plně zrekonstruovaného jednotek na jedné z nejprestižnějších adres v Brně. Jednotky budou připraveny k okamžitému využití ve stávajícím stavu, bez nutnosti dalších úprav od 1.9.2025.
V případě zájmu o více informací nebo sjednání osobní prohlídky nás neváhejte kontaktovat.
























