Podnájem jednotky 1+kk na ulici Václavská
| Město | Brno |
|---|---|
| Číslo nabídky | 737741 |
| Cena | 15 900 Kč za měsíc |
| Poznámka | + 4 420 Kč za služby a energie + 25 000 Kč vratná kauce + administrativní poplatek |
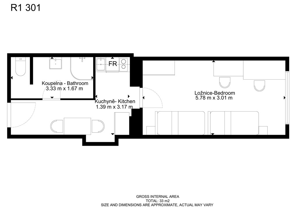
Nabízíme k podnájmu jednotku R1.301 o celkové výměře 33 m2, která je ihned k nastěhování ihned. K dispozici je ve stejném komplexu několik jednotek ve velikosti 1+kk, 2+kk a 2+1 pro 2 až 4 osoby.
Jedná se o podnájem kompletně vybavené jednotky o dispozici 1+1 v zrekonstruovaném domě. Součástí vybavení kuchyně je plně zařízený kuchyňský kout, včetně lednice, sklokeramické desky, mikrovlnné trouby, varné konvice a dřezu. Samostatná ložnice je vybavena dvěma pracovními stoly se židlemi, dvěma postelemi a dostatečným prostorem na ukládání oblečení. Koupelna je také plně vybavená, a to sprchovým koutem, záchodem a umyvadlem se zrcadlem. K dispozici je příprava pro připojení vlastní pračky.
Benefity pro podnájemníky:
internetové připojení v jednotce k dispozici
zvýhodněná cena za parkování 1 690 Kč měsíčně
venkovní relax zóna vč. posezení, grilu, pingpongu
venkovní posilovna (zdarma) a vnitřní posilovna (placená)
nemáme nevrlé sousedy
Jednotky se nachází v lukrativní oblasti v bezprostřední blízkosti centra Brna. Samotné centrum Brna je dostupné v pěší vzdálenosti. V těsné blízkosti se nachází jeden z největších dopravních uzlů v Brně – Mendlovo náměstí, které Vám zajistí bezproblémové spojení na brněnské univerzity. V okolí se nachází několik obchodů, restaurací, barů, posiloven a ostatních služeb.
O aktuální dostupnosti a podmínkách Vás budeme rádi informovat.
Rádi se s Vámi setkáme na osobní prohlídce.
















