Podnájem jednotky 1+kk na Starém Brně
| Město | Brno |
|---|---|
| Číslo nabídky | 732454 |
| Cena | 13 900 Kč za měsíc |
| Poznámka | + 4 420 Kč za služby, poplatky a energie +kauce + administrativní poplatek |
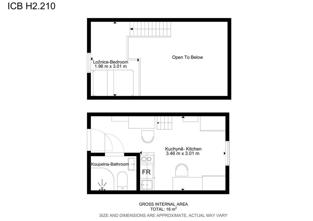
Nabízíme k podnájmu jednotku H2.210 o celkové výměře 23,6 m2, která je k dispozici od 1.2.2026. K dispozici je ve stejném komplexu několik jednotek ve velikosti 1+kk, 2+kk a 2+1 pro 2 až 4 osoby.
Jedná se o podnájem kompletně vybavené jednotky o dispozici 1+kk v nově zrekonstruovaném domě. K dispozici je moderní kuchyňský kout včetně lednice, sklokeramické desky, mikrovlnné trouby, varné konvice, digestoře a dřezu. Jednotka je vybavena pracovními stoly se židlemi, dvěma postelemi umístěnými v mezonetovém prostoru a prostornou skříní. Koupelna nabízí sprchový kout, záchod a umyvadlo se zrcadlem.
Benefity pro podnájemníky:
internetové připojení v jednotce k dispozici
společné prádelny, kde se nachází vždy pračky a sušičky (za poplatek)
zvýhodněná cena za parkování 1 690 Kč měsíčně
venkovní relax zóna vč. posezení, grilu, pingpongu
venkovní posilovna (zdarma) a vnitřní posilovna (placená)
nemáme nevrlé sousedy
Jednotky se nachází v lukrativní oblasti v bezprostřední blízkosti centra Brna. Samotné centrum Brna je dostupné v pěší vzdálenosti. V těsné blízkosti se nachází jeden z největších dopravních uzlů v Brně – Mendlovo náměstí, které Vám zajistí bezproblémové spojení na brněnské univerzity. V okolí se nachází několik obchodů, restaurací, barů, posiloven a ostatních služeb, které Vám zpříjemní žití na tomto místě.
Jednotka je vhodná k různým účelům.
O aktuální dostupnosti a podmínkách Vás budeme rádi informovat.
Rádi se s Vámi setkáme na osobní prohlídce.


















